(731)元入居者さんのリフォームを手伝う①工事前の室内
昨年、元入居者さんがマンションを購入しリフォームするというのでお手伝いしました。今回からその話をしていきたいと思います。
僕自身、自分の持ち物件は何度なくリフォームしてきたのですが、他人のお手伝いをするのは初めてで、いろいろ新鮮な経験もできて勉強になりました。
第一回は、リフォーム前の室内の様子をごらんいただきながら、お手伝いをすることになるまでの経緯などをお話しようと思います。
入居者のKさんから最初の相談を受けたのは一昨年(2024年)の春くらいだったと記憶しています。「物件を買うことになりました」と聞いて僕は興味津々でした。
聞けば、ワケありの築古物件を相場よりもお安く購入することができそうだという話。ただ、特殊な事情があって、実際に物件を購入できるのは来年(2025年)で、一年ほど待たねばならないというのです。

港区の一等地、上層階の角部屋ということで日当たりも素晴らしい物件。広さは38平米と決して広くはありませんが、Kさんが一人でお住まいになるならば十分でしょう。ちなみにうちのマンションは30平米で僕は二人暮らしですから、一人で38平米はものすごくうらやましいです。
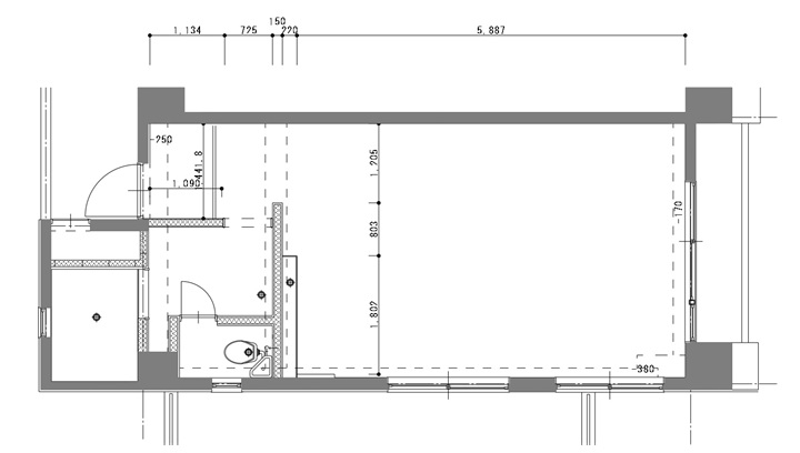
間取りを確認しておきましょう。

なんというシンプルな状態でしょう。
本来ならばあるはずのキッチンがどこにもなく、

洗面と思しきスペースに簡易的な流し台が備え付けられているだけ。

浴室も浴槽などは撤去されていて、棚が置かれていました。

トイレはかなり年季の入ったタンク式トイレ。使えればいい、といった感じ。

もうお気づきの方もいると思いますが、この部屋はふつうの住居ではなく、事務所として使われていました。
なんといっても驚いたのが、この事務所の関係者が僕の大学時代の仲の良い友人だったことです。
ここで話は冒頭の「ワケあり」につながります。この事務所、実はとある学術団体の事務局として使われていて、所有者は大学なのでした。
昨今の経営スリム化のために売りに出したのかもしれませんが、大学では物件ひとつ売買するにもさまざまな決定プロセスを経なければならないんだとか。さらに、事務局の移転先を探すという問題もあり、購入まで一年近く待たされるという特殊な物件が生み出されたというわけです。

室内がこの状況ですからリフォームは必須。一年の待ち時間+工事期間となると、「すぐ住みたい」という人は到底手が出せませんし、おのずと買い手も限られます。しかも、一年後に経済情勢が大きく変化しているかもしれないという不安だってありますよね。
Kさんはそのリスクも承知で一年待つことを決めました。そのかいあって、周辺相場よりも安い価格で物件を手に入れることができたのでした。不動産仲介業者さん曰く「競争相手はいましたけど、Kさんの粘り勝ちですね」と。

僕が購入した物件ではないので購入価格は控えさせていただきますが、知り合いの大家さんや不動産業者さんにいろいろ聞いてみても、「その立地でその価格はかなり安いですね!」というリアクションが返ってきたので、お値打ちだったのはまちがいありません。
さて、件の友人に連絡を取ってみると、「売りに出すとは聞いてたけど、あんなところ、住めるようになるの?」と半信半疑な様子。たしかに数十年間リフォームしていない物件って、何も知らない人が見るとそう思ってしまいますよね。

ですが、正直、僕は悪くない状態だと感じました。これだけくたびれた内装ならどの設備を残そうか迷う必要もありませんし、残置物どころか浴槽もキッチンもないのですから解体費用も安上がりになりそうです。
広さも築年数もうちのマンションと大差ありませんから、どうやって工事したらいいか、僕でも容易に想像できました。
しかも、売主さん(の関係者)と買主さんがともに僕の知り合いということならば、これはもうご縁としかいいようがありません。Kさんさえよければ、リフォームをお手伝いさせてもらいたいと僕から提案したのでした。

とはいえ、僕だってしょせんは素人。できることは限られます。ですが、ふだんからお世話になっているリフォーム業者さんが信頼できることには確信があったので、その会社をKさんにご紹介するだけでも十分役に立てるはずです。

なお、今回ご紹介した写真は、2025年の春ごろ、僕の紹介した会社の担当者さんとKさんと一緒に物件を下見に行ったときに撮影したものです。
とまあ、こんな経緯で元入居者さんのリフォーム計画が始まったのでした。さて、このくたびれた物件をどう生まれ変わらせるか――次回は、リフォームプランを考えます。


















