(733)元入居者さんのリフォームを手伝う③完成した室内

インテリア

引き続き、元入居者のKさんのリフォームを手伝ったお話です。

前回、リフォームのプランが決まるまでの紆余曲折について書きました。

今回はリフォームで生まれ変わった室内を写真とともに紹介します。

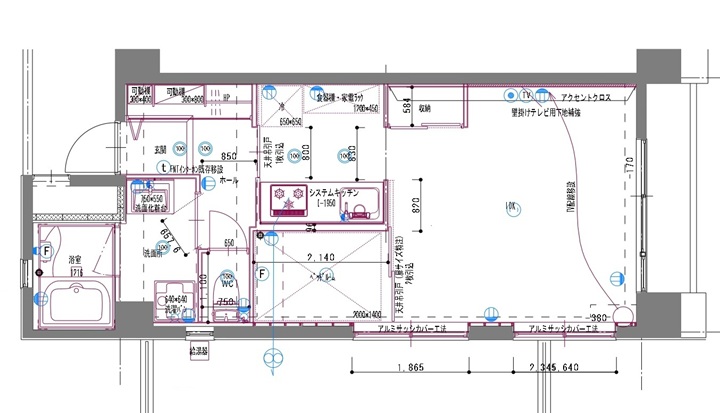
基本情報を確認すると港区の築古マンションで室内の広さはおよそ38平米

間取り

上層階の角部屋なので窓が多いのが特長です。

なお、リフォーム前の室内については前々回の記事でご紹介していますので、

ご興味ある方はそちらとくらべながらお読みください。


■玄関収納、キッチン、クローゼット

では、ルームツアーとまいりましょう。

玄関

玄関ドアを開けたところです。左手のミラーの後ろはシューズボックス。

玄関

その隣にはたっぷりの収納があります。一人暮らしならまず困らない容量です。

キッチン

さらに進むとキッチン。奥のリビングにつながる通路を兼ねることで省スペース化を図っていることは、前回も触れました。

キッチン

キッチン本体はリクシル(Lixil)の「ES」(ビルダー向け。「シエラ」に相当)

キッチン収納

その向かいには同じシリーズの収納棚を設置し、電子レンジなどの家電を置くスペースも確保しました。

この右隣には、クローゼットが。

クローゼット

洋服の好きなKさんのこだわりポイントのひとつがクローゼットでした。もともとウォークインクローゼットを希望していたのですが、スペースの都合であきらめたものの、ただのクローゼットにはしたくなかったそう。

クローゼット

そこで、半透明のポリカーボネート製の建具を選び、中の洋服の存在が感じられるようにリクエストしたそうです。開けると自動で灯りが付くので中も見やすいです。


■ハイライトは窓に囲まれた開放感のあるリビング

そして。

リビング

こちらが今回のリフォームのハイライトであるリビングです。角部屋なので窓が三つもあり、38平米の物件としては異例の開放感

リビングの窓

窓から見えるビル群は港区ならではですが、しっかり緑も目に入るので無味乾燥な印象は受けません。

前回、プランを練った際、「窓に面しているリビングを作ることを一番重視したかったんです」というKさんの言葉を紹介しましたが、その気持ちが結実したのがこの空間だと言えるでしょう。

リビング

テレビが置かれる予定の壁にはダークグレーの壁紙でアクセントを付けました。こちらはサンゲツの壁紙「TH32697」。ショールームに足を運んでご自身で選ばれました。

リビング

実を言うと、今回のリフォームではインテリア面のコーディネートについては僕はあまりタッチしていません。Kさんが望む内装イメージがわりとしっかりしていたので、僕は必要に応じてアドバイスするていどでした。


■特注サイズの引戸で仕切れるベッドスペース

さて、奥の掃き出し窓を背にして部屋の手前側を眺めると、

リビングからベッドを望む

左手にベッドスペースが見えます。位置的にはキッチンの裏側に当たります。

ベッドルーム

コンパクトなスペースではありますが、ダブルベッドもギリギリ入る幅を確保してあるそうです。

ウォールランプ

Kさんが選んだウォールランプが、ネイビーブルーの壁紙(サンゲツの「TH32466」)を優しく照らしています。

スライドドア

こちらのベッドスペースは2枚の引戸でリビングと区切ることもできるようになっています。本来ならば、窓にかぶる箇所に引戸を設けることはしないかと思いますが、Kさんたっての希望で設置しました。

スライドドア

床から天井までの特注サイズ。「中途半端に既製のサイズを選ばないでよかった」とすっきりとした見た目に満足している様子でした。


■シンプル&コンパクトにまとめた水回り

トイレ、洗面、浴室

トイレ、洗面、浴室はコンパクトにまとめました。

トイレ

Kさん自身はトイレにはこだわりがないとのことで、オーソドックスでリーズナブルな便器(TOTOの「ZJ」)を業者さんが提案してくれました。壁面収納は僕の手元に余っていたIKEA(イケア)のリルオンゲン(現在は廃番)を格安でお譲りして設置しています。

ユニットバス

浴室は広さに制限もあり、選択肢も予算も限られていたことから、こちらもスタンダードなユニットバスを設置しました。リクシルの「リノビオ」(1216サイズ)です。

洗面のエルヴィータ

洗面はタカラスタンダードの「エルヴィータ」。こちらはKさんと一緒にショールームめぐりをした際に選んだものです。

ショールームのエルヴィータ

これはショールームで撮影した写真。最近は、いわゆる一体型の洗面台ではなく、シンプルですっきりしたデザインの洗面を選びたいという方も増えているのではないかと思います。足下が空いているので軽やかな印象を受けるのもよいですね。


■後悔もあるけれど、暮らしながら改善していけばいい

全体的には満足しているKさんですが、実際に暮らしてみて「あれがあったらよかったな」とか「こうすればよかったな」と感じることはあるそうで。

ひとつは「ベッドルームに部屋干し用のワイヤーをつければよかった」という点。

物干しワイヤー
※写真はイメージです

ベッドルームにはトビラ(引戸)があるから部屋干ししていてもお客さんがきたら隠せるし、外に干したくなったらバルコニーにすぐ持って行けますし」とはKさんの言葉です。

物干しワイヤー(ランドリーロープ)はうちのマンションの定番ですが、自分にとっては当たり前すぎてKさんに提案するのを忘れてしまったのは失敗でした。

また、「インターホンを玄関の近くじゃなくて、リビングのほうにつければよかったと思いますね」とのこと。

インターホンのモニター
※写真はイメージです

うんうん、それ、僕もマンションのリフォームで後悔しているポイントなんです。なるほど、部屋の中でいちばん滞在する時間が長いのはリビングかベッドルームなので、玄関にモニターがあると、インターホンが鳴ってからそこまで移動するのが面倒臭く感じられるんですよね。

あと、リビングの中心に「床からポチっと出てくるコンセント」を設置すればよかったという思いもあるんだとか。コンセント、ここにつければよかったという後悔はリフォームあるあるですが、床に埋め込むタイプのコンセントってけっこう高額なので、検討した結果、没になった可能性もあったかも。

そのほか、寝室のウォールライトの照明スイッチを枕元に付ければよかったとか、来客用のハンガーをかける場所を設ければよかった、などのポイントが挙がりました。

でも、物干しワイヤーやハンガーフックの後付けなら十分可能です。今後手を加えたいポイントをメモしておいて、あるていど溜まってきたらまとめて工事するといいとアドバイスしました。業者さんを呼ぶのってそれなりにお金がかかるので、一度呼ぶならいろいろお願いするのが効率的だと思います。

それに、インターホンのモニターを移転するのは無理でも、室内のミニターがリモコンタイプのものに交換すれば使い勝手も向上するはずです。照明は中の電球をスマート電球に交換すればリモコン操作できるようになりますし、床にコンセントを増設するのは難しいですが、目に入ってもイヤな感じのしないコンセントタップを探すとか、やり方はいろいろあります。

リフォーム後の窓辺

Kさんもまだ暮らし始めたばかり。これからそういうポイントを整理しながら、少しずつ改善しながら快適な空間を創っていってほしいと思います。

次回は、気になるお金の話。リフォームにかかった費用について考えます。

アサクラ

大家業。世田谷のマンションと東京西部の山奥にある小屋を管理&経営しています。最近は熱海に購入したマンションの一室をDIYで修繕中。ESSE online(エ...

プロフィール

ピックアップ記事

関連記事一覧